
产品概述:
液化天然气低温球阀适用于的各种管路上,用于截断或接通管路中的介质,选用304不锈钢材质,可分别适用于不同的温度和介质,工作温度为-196℃。
低温球阀的驱动方式为手动、蜗轮蜗杆传动、气动或电动。
技术参数:
公称压力:1.6-4.0MPa
公称通径:10mm~50mm
适用介质:LO2、LN2、LAr、LNG、LC2H4等
适用温度:-196~+80℃
连接方式:螺纹、法兰、焊接
介质流向:由阀门的左侧向右流
主要零部件材料
阀体、阀盖、阀杆:不锈钢
球体:不锈钢实心球
填料/密封圈:PTFE或PCTFE
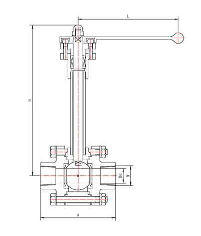
产品结构及尺寸:

