

产品简介:
防爆波阀是一种既能消除冲击波又能阻挡水锤冲击波的安全阀,它是由多组安全阀构成的产物,它起到的功能是单一安全阀无法达到的。该产品安装于给水管道的头部和人防往外输送介质的出口处,以挡波和消波的方式相结合,防止冲击波进入系统设施工程的内部,从而达到消除具有破坏性的冲击波,起到保护系统设施正常运转和安全防护的目的。在正常状态下阀门处于常开状况,系统介质正常畅通,当冲击波传入该阀时,主阀活门受到冲击,克服了弹簧的强力,迅速关闭将冲击波挡在外端,而已进入的冲击波在消波阀的作用下,引入消波室,化解了冲击波的破坏力,通过阻挡和化解从而达到了保护的意义。主要用于人防系统往外输送介质管网的头部,用以防止系统设施外端的冲击波进入,保护设施和人员的安全。
工作原理:
防爆波阀平时在正常使用的工作压力条件下,弹簧支撑的阀板处于开启位置,可使管道内的介质正常通过,战时通过甭站贮水池或破裂的管道,当有冲击波传入阀时,阀板前的压力突然增加,阀板前后形成强烈的压差。在高压室的作用下,弹簧被压缩,阀板迅速到达关闭位置,把冲击波阻挡在阀板之外,化解了冲击波的破坏力。通过阻挡和化解起到保护和安全的作用。冲击波过后,阀板仍处于开启位置,管道恢复到正常的工作状态。
技术参数:
产品名称 |
FA49H防爆波阀 |
产品型号 |
FA49H |
公称通径 |
DN25-400 |
压力范围 |
1.0-1.6MPa |
阀体材质 |
球墨铸铁、碳钢、不锈钢 |
公称压力 | 1.0MPa | 1.6MPa |
工作压力 | 0.2-0.6MPa | 0.4-0.8MPa |
阀体使用压力 | 1.5MPa | 2.4MPa |
强度试验压力 | 2.5MPa | 3.6MPa |
适用介质 | 清水、油品 | 清水、油品 |
合用温度 | 0-80ºC | 0-80ºC |
消波效率 | 90% | 90% |
部件名称及部分材质:
零件名称 | 阀体/阀盖 | 活塞 | 密封圈 |
材质属性 | 球墨铸铁/碳钢/不锈钢 | 铸铜/不锈钢 | 丁腈橡胶 |
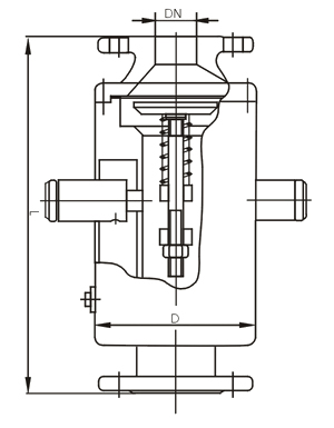
外形尺寸:
DN | 50 | 65 | 80 | 100 | 125 | 150 | 200 |
L | 390 | 440 | 440 | 500 | 520 | 535 | 600 |
D | 160 | 160 | 160 | 220 | 270 | 270 | 375 |
安装示意图:
咨询:FA49H防爆波阀