

产品介绍:
旋启式衬氟止回阀又称氟塑料衬里耐腐阀门,是将聚四氟乙烯树脂(或型材经加工)采用模压(或镶嵌)方法置于钢质或铁质的阀门承压件的内壁(同样的方法适用于各类压力容器及管路附件的内衬)或阀门内件的外表面,利用其在抗强腐蚀介质方面的独特性能制做成各类阀门和压力容器。
H44F4、H44F3、H44F46衬氟旋启式止回阀介质所能到达的地方采用衬里工艺,内衬材料采用F46和F3等氟塑料,能够承受“除熔融碱金属和元素氟”以外腐蚀性介质,适用于浓度的硫酸、盐酸、氢氟酸、王水和有机酸、强酸、强氧化剂及其它腐蚀性介质等管路,但由于衬里材质的性质,衬里止回阀根据衬里材质的不同,可在-20℃~150℃之间正常使用,且不适宜用于高压。其工作原理:衬氟止回阀属于一种自动阀门,启闭件靠介质流动和力量自行开启或关闭,主要用于介质单向流动的管道上,只允许介质向一个方向流动,以防止发生介质倒流、防止泵及驱动电动机反转,以及容器介质的泄放等事故。
产品特点:
1、适用于一般工况及磨损或强腐蚀介质的特种工况。
2、旋启式衬氟止回阀无需外加任何能源装置,减少运行成本。
3、防倒灌倒流效果好,利用橡胶本身的弹性及反向背压的作用。
4、工作时通过内外压力差来自然地实现开启与闭合,是强腐蚀性介质及电站脱硫。
5、密封可靠,特别是新型弯曲形阀嘴,进一步增加密封性,减少渗漏量或无渗漏。
6、独特的设计特点允许固体颗粒物须畅地通过阀门,甚至可以利用身的柔性将固体颗粒包裹住以保证密封。
产品用途及原理:
H44F46旋启式衬氟止回阀专用于控制腐蚀性或强腐蚀性介质,阀体内腔表面覆有可供选择的各种氟塑料,具有强度高、耐腐蚀性能好的特点;适用于不同工作温度和流体管路,防止各类管路或设备上的介质逆流的单向启闭。
H44F46旋启式衬氟止回阀的阀轴与阀瓣设计为一体,全部衬氟塑料的轴,镶嵌在阀体与阀盖之间形成的特殊凹槽内,启闭灵活,密封可靠。另外,除了阀体、阀瓣外,复位弹簧也全部包衬了耐腐蚀的氟塑料,设计合理的弹簧,使阀瓣在低压区内也能产生足够的密封比压,保证阀门在低压力区密封的可靠性。
基本参数:
|
产品名称
|
H44F4,H44F3,H44F46衬氟旋启式止回阀
|
|
产品型号
|
H44F4、H44F3、H44F46
|
|
公称通径
|
DN15-500mm
|
|
压力范围
|
1.6MPa
|
|
阀体材质
|
铸钢,不锈钢
|
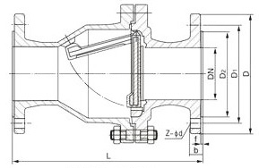
结构图:
主要零部件材料表:
|
序号 |
零件名称 |
灰铸铁 |
铸钢 |
不锈耐酸铸钢 |
超低碳不锈耐酸铸钢 |
||
|
Z |
C |
R |
PL |
RL |
|||
|
1 |
阀体/阀盖 |
HT250 |
WCB |
CF8 |
CF8M |
CF3 |
CF3M |
|
2 |
阀瓣/阀杆 |
35 |
1Cr13 |
1Cr18Ni9 |
1Cr18Ni12Mo2Ti |
00Cr18Ni10 |
00Cr17Ni14Mo2 |
|
3 |
衬里/阀座 |
PCTEF(F3),FEP(F46),PFA(可溶F4),PP,PO |
|||||
|
4 |
紧固螺栓 |
WCB |
1Cr17Ni2 |
1Cr18Ni9Ti |
|||
|
5 |
螺母 |
PTFE(F4) |
CF8 |
CF8 |
|||
主要外形和连接尺寸:
|
公称通经 |
L |
D |
D1 |
D2 |
f |
Z-φd |
D |
D1 |
D2 |
f |
Z-φd |
|||
|
DN(mm) |
NPS(inch) |
PN1.0MPa |
PN1.6MPa |
|||||||||||
|
15 |
1/2 |
130 |
95 |
65 |
45 |
2 |
14 |
4-φ14 |
130 |
95 |
65 |
2 |
14 |
4-φ14 |
|
20 |
3/4 |
150 |
105 |
75 |
55 |
2 |
16 |
4-φ14 |
150 |
105 |
75 |
2 |
16 |
4-φ14 |
|
25 |
1 |
160 |
115 |
85 |
65 |
2 |
16 |
4-φ14 |
160 |
115 |
85 |
2 |
16 |
4-φ14 |
|
32 |
5/4 |
180 |
135 |
100 |
78 |
2 |
18 |
4-φ18 |
180 |
135 |
100 |
2 |
18 |
4-φ18 |
|
40 |
3/2 |
200 |
145 |
110 |
85 |
3 |
18 |
4-φ18 |
200 |
145 |
110 |
3 |
18 |
4-φ18 |
|
50 |
2 |
230 |
160 |
125 |
100 |
3 |
20 |
4-φ18 |
230 |
160 |
125 |
3 |
20 |
4-φ18 |
|
65 |
5/2 |
290 |
180 |
145 |
120 |
3 |
20 |
4-φ18 |
290 |
180 |
145 |
3 |
20 |
4-φ18 |
|
80 |
3 |
310 |
195 |
160 |
135 |
3 |
22 |
4-φ18 |
310 |
195 |
160 |
3 |
22 |
4-φ18 |
|
100 |
4 |
350 |
215 |
180 |
155 |
3 |
22 |
8-φ18 |
350 |
215 |
180 |
3 |
24 |
8-φ18 |
|
125 |
5 |
400 |
245 |
210 |
185 |
3 |
24 |
8-φ18 |
400 |
245 |
210 |
3 |
26 |
8-φ18 |
|
150 |
6 |
480 |
280 |
240 |
210 |
3 |
24 |
8-φ23 |
480 |
280 |
240 |
3 |
28 |
8-φ23 |
|
200 |
8 |
600 |
335 |
295 |
265 |
3 |
26 |
8-φ23 |
495 |
335 |
295 |
3 |
30 |
12-φ23 |
|
250 |
10 |
622 |
390 |
350 |
320 |
3 |
28 |
12-φ23 |
622 |
405 |
355 |
3 |
32 |
12-φ25 |
|
300 |
12 |
698 |
440 |
400 |
368 |
4 |
28 |
12-φ23 |
698 |
460 |
410 |
4 |
34 |
12-φ25 |
|
350 |
14 |
787 |
500 |
460 |
428 |
4 |
30 |
16-φ23 |
787 |
520 |
470 |
4 |
38 |
16-φ25 |
|
400 |
16 |
914 |
565 |
515 |
482 |
4 |
32 |
16-φ25 |
914 |
580 |
525 |
4 |
40 |
16-φ30 |
|
450 |
18 |
978 |
615 |
565 |
532 |
4 |
32 |
20-φ25 |
||||||
|
500 |
20 |
978 |
670 |
620 |
585 |
4 |
34 |
20-φ25 |
||||||
咨询:H44F46衬氟旋启式止回阀